2 Bedroom
2 Bathroom
1,100 - 1,500 sqft
Bungalow
None
Forced Air
$649,777
Welcome to this stunning brand new bungalow, thoughtfully designed with modern living in mind. Featuring 2 spacious bedrooms and 2 full bathrooms, this home offers a functional and stylish layout perfect for downsizers, first-time buyers, or anyone seeking the ease of single-level living. Step inside to discover a bright, open-concept space finished with durable vinyl flooring throughout and complemented by elegant quartz countertops in the kitchen. The contemporary design continues outside with a striking blend of stone and stucco, accented by clean, modern architectural details that create exceptional curb appeal. Enjoy the convenience of a 1-car garage and the added value of a full appliance package included. Buyers will also appreciate the opportunity to personalize their home with available upgrade options, allowing you to tailor finishes and features to your taste. A perfect blend of quality craftsmanship and modern design-this is an incredible opportunity to own a brand new home built for comfort and style. (id:56248)
Property Details
|
MLS® Number
|
X12995048 |
|
Property Type
|
Single Family |
|
Community Name
|
Haldimand |
|
Equipment Type
|
Water Heater |
|
Parking Space Total
|
2 |
|
Rental Equipment Type
|
Water Heater |
Building
|
Bathroom Total
|
2 |
|
Bedrooms Above Ground
|
2 |
|
Bedrooms Total
|
2 |
|
Age
|
New Building |
|
Architectural Style
|
Bungalow |
|
Basement Development
|
Unfinished |
|
Basement Type
|
Full (unfinished) |
|
Construction Style Attachment
|
Detached |
|
Cooling Type
|
None |
|
Exterior Finish
|
Stone, Stucco |
|
Foundation Type
|
Poured Concrete |
|
Heating Fuel
|
Natural Gas |
|
Heating Type
|
Forced Air |
|
Stories Total
|
1 |
|
Size Interior
|
1,100 - 1,500 Sqft |
|
Type
|
House |
|
Utility Water
|
Municipal Water |
Parking
|
Attached Garage
|
|
|
Garage
|
|
|
Inside Entry
|
|
Land
|
Acreage
|
No |
|
Sewer
|
Sanitary Sewer |
|
Size Depth
|
141 Ft |
|
Size Frontage
|
36 Ft |
|
Size Irregular
|
36 X 141 Ft |
|
Size Total Text
|
36 X 141 Ft|under 1/2 Acre |
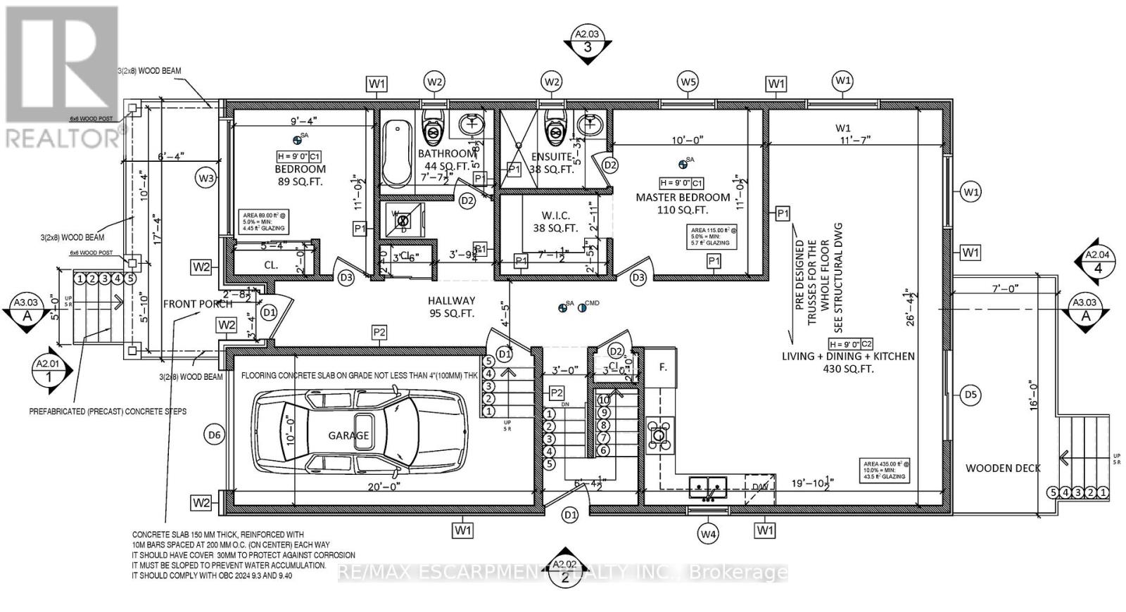
Rooms
| Level |
Type |
Length |
Width |
Dimensions |
|
Main Level |
Kitchen |
2.51 m |
3.05 m |
2.51 m x 3.05 m |
|
Main Level |
Dining Room |
2.51 m |
3.05 m |
2.51 m x 3.05 m |
|
Main Level |
Family Room |
3.53 m |
4.98 m |
3.53 m x 4.98 m |
|
Main Level |
Primary Bedroom |
3.05 m |
3.35 m |
3.05 m x 3.35 m |
|
Main Level |
Bathroom |
|
|
Measurements not available |
|
Main Level |
Bedroom |
2.84 m |
3.35 m |
2.84 m x 3.35 m |
|
Main Level |
Bathroom |
|
|
Measurements not available |
|
Main Level |
Laundry Room |
|
|
Measurements not available |
Utilities
|
Cable
|
Installed |
|
Electricity
|
Installed |
|
Sewer
|
Installed |
https://www.realtor.ca/real-estate/29600862/86-pike-creek-drive-haldimand-haldimand