4 Bedroom
3 Bathroom
1,100 - 1,500 sqft
Bungalow
Fireplace
Central Air Conditioning
Forced Air
$849,900
Presenting 823 Essa Road, set on an expansive 75' x 200' mature lot in one of Barrie's most rapidly evolving corridors. Surrounded by ongoing and recent development, this property offers a rare opportunity for both immediate income potential and long-term redevelopment upside. Ideal for today's savvy buyer, the home features a fully self-contained in-law suite with separate access, perfect for multigenerational living or conversion into a legal duplex. Beyond its current use, the true value lies in the future potential, with the possibility of additional dwelling units or redevelopment as this stretch of Essa Road continues to transform. Notably, this represents one of the last remaining pockets of large, mature lots in the area, with many neighbouring properties already transitioned into townhome and low- to mid-rise developments. The main level offers 3 spacious bedrooms and 2 bathrooms, highlighted by a beautifully updated open-concept kitchen featuring stainless steel appliances, white shaker cabinetry, and a modern tiled backsplash. The bright and inviting living room is anchored by a charming bay window and a cozy gas fireplace with custom built-ins. The lower level, with private access through the garage, includes a newly completed (2026) 1-bedroom suite with a full kitchen and bathroom, ideal for rental income or extended family. Additional updates include: roof (2019), furnace (2019), and air conditioning (2019). 823 Essa Road delivers the perfect blend of immediate functionality and future opportunity in a high-growth location. (id:56248)
Open House
This property has open houses!
Starts at:
1:30 pm
Ends at:
3:30 pm
Property Details
|
MLS® Number
|
S13028826 |
|
Property Type
|
Single Family |
|
Community Name
|
Holly |
|
Amenities Near By
|
Public Transit, Place Of Worship, Park |
|
Community Features
|
School Bus |
|
Equipment Type
|
Water Heater |
|
Features
|
In-law Suite |
|
Parking Space Total
|
7 |
|
Rental Equipment Type
|
Water Heater |
|
Structure
|
Shed |
Building
|
Bathroom Total
|
3 |
|
Bedrooms Above Ground
|
3 |
|
Bedrooms Below Ground
|
1 |
|
Bedrooms Total
|
4 |
|
Age
|
51 To 99 Years |
|
Amenities
|
Fireplace(s) |
|
Appliances
|
Dishwasher, Dryer, Microwave, Stove, Washer, Window Coverings, Refrigerator |
|
Architectural Style
|
Bungalow |
|
Basement Development
|
Finished |
|
Basement Features
|
Separate Entrance |
|
Basement Type
|
Full, N/a (finished), N/a |
|
Construction Style Attachment
|
Detached |
|
Cooling Type
|
Central Air Conditioning |
|
Exterior Finish
|
Brick |
|
Fireplace Present
|
Yes |
|
Fireplace Total
|
1 |
|
Half Bath Total
|
1 |
|
Heating Fuel
|
Natural Gas |
|
Heating Type
|
Forced Air |
|
Stories Total
|
1 |
|
Size Interior
|
1,100 - 1,500 Sqft |
|
Type
|
House |
|
Utility Water
|
Municipal Water |
Parking
Land
|
Acreage
|
No |
|
Land Amenities
|
Public Transit, Place Of Worship, Park |
|
Sewer
|
Sanitary Sewer |
|
Size Depth
|
200 Ft |
|
Size Frontage
|
75 Ft |
|
Size Irregular
|
75 X 200 Ft |
|
Size Total Text
|
75 X 200 Ft |
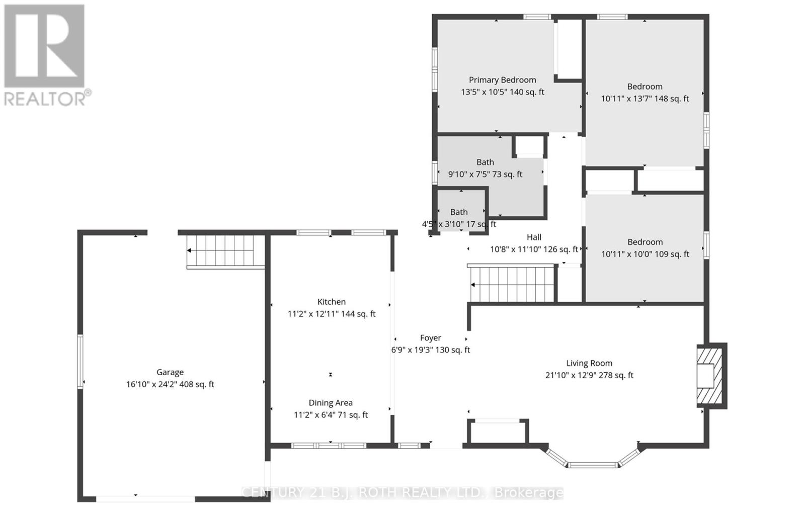
Rooms
| Level |
Type |
Length |
Width |
Dimensions |
|
Basement |
Bedroom |
3.47 m |
5.88 m |
3.47 m x 5.88 m |
|
Basement |
Bathroom |
2.82 m |
1.7 m |
2.82 m x 1.7 m |
|
Basement |
Recreational, Games Room |
3.96 m |
7.98 m |
3.96 m x 7.98 m |
|
Basement |
Kitchen |
3.56 m |
4.9 m |
3.56 m x 4.9 m |
|
Main Level |
Living Room |
6.43 m |
3.93 m |
6.43 m x 3.93 m |
|
Main Level |
Dining Room |
3.41 m |
1.95 m |
3.41 m x 1.95 m |
|
Main Level |
Kitchen |
3.41 m |
3.69 m |
3.41 m x 3.69 m |
|
Main Level |
Primary Bedroom |
4.11 m |
3.2 m |
4.11 m x 3.2 m |
|
Main Level |
Bedroom |
3.08 m |
4.17 m |
3.08 m x 4.17 m |
|
Main Level |
Bedroom |
3.08 m |
3.04 m |
3.08 m x 3.04 m |
|
Main Level |
Bathroom |
2.77 m |
2.28 m |
2.77 m x 2.28 m |
|
Main Level |
Bathroom |
1.37 m |
0.94 m |
1.37 m x 0.94 m |
https://www.realtor.ca/real-estate/29639131/823-essa-road-barrie-holly-holly