2 Bedroom
1 Bathroom
0 - 699 sqft
None
Baseboard Heaters
$2,000 Monthly
Apartment in Downtown Georgetown - Ready for Immediate Occupancy. Located in the heart of Downtown Georgetown, this spacious 2nd-floor two bedroom / 1 bath apartment is accessed through a ground floor fenced patio area. Open concept main floor with a generous kitchen, living and dining area. The kitchen is equipped with a fridge and a stove. Coin-operated laundry is available on-site for your convenience.This non-smoking building consists of multiple residential units and is not suitable for pets. Ideal for a couple or small family, the unit includes one designated parking spot. Electricity (hydro) is an additional as a flat fee of $100.00 per month. Additional parking may be available in the public lot on Wesleyan Street through a paid parking pass from the Town of Halton Hills for the Tenants to purchase at their own expense. Enjoy the convenience of being just a short walk to Main Street's shops, restaurants, and the local Downtown events and farmers' market. A nearby GO Bus stop adds to the ease of commuting. Available immediately with mid-month occupancy possible on a prorated basis; rent due on the 1st of each month. Applicants must submit a complete rental application with employment letter, recent pay stubs, Equifax credit report (only Equifax accepted), government-issued photo ID, and references. First and last month's rent required. Landlord reserves the right to accept or reject any applications to lease. (id:56248)
Property Details
|
MLS® Number
|
W12869200 |
|
Property Type
|
Single Family |
|
Community Name
|
Georgetown |
|
Amenities Near By
|
Hospital, Park |
|
Features
|
Level Lot, Flat Site, Level, Carpet Free, Laundry- Coin Operated |
|
Parking Space Total
|
1 |
|
Structure
|
Patio(s) |
Building
|
Bathroom Total
|
1 |
|
Bedrooms Above Ground
|
2 |
|
Bedrooms Total
|
2 |
|
Amenities
|
Separate Heating Controls |
|
Appliances
|
Hood Fan, Stove, Refrigerator |
|
Basement Type
|
None |
|
Cooling Type
|
None |
|
Exterior Finish
|
Vinyl Siding |
|
Fire Protection
|
Smoke Detectors |
|
Flooring Type
|
Laminate, Tile |
|
Heating Fuel
|
Electric |
|
Heating Type
|
Baseboard Heaters |
|
Stories Total
|
2 |
|
Size Interior
|
0 - 699 Sqft |
|
Type
|
Other |
|
Utility Water
|
Municipal Water |
Parking
Land
|
Acreage
|
No |
|
Fence Type
|
Fully Fenced, Fenced Yard |
|
Land Amenities
|
Hospital, Park |
|
Sewer
|
Sanitary Sewer |
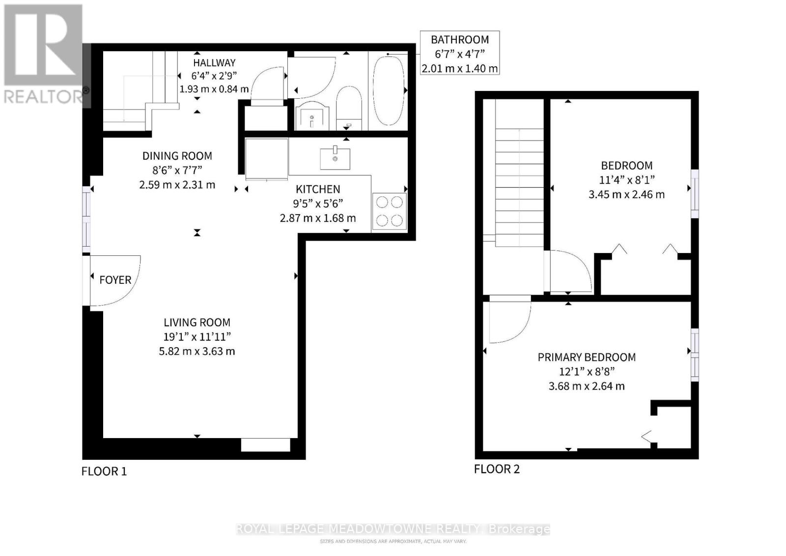
Rooms
| Level |
Type |
Length |
Width |
Dimensions |
|
Second Level |
Primary Bedroom |
3.68 m |
2.64 m |
3.68 m x 2.64 m |
|
Second Level |
Bedroom |
3.45 m |
2.46 m |
3.45 m x 2.46 m |
|
Main Level |
Living Room |
5.82 m |
36.6 m |
5.82 m x 36.6 m |
|
Main Level |
Kitchen |
2.87 m |
1.68 m |
2.87 m x 1.68 m |
|
Main Level |
Dining Room |
2.59 m |
2.31 m |
2.59 m x 2.31 m |
|
Main Level |
Bathroom |
2.01 m |
1.4 m |
2.01 m x 1.4 m |
Utilities
|
Cable
|
Available |
|
Electricity
|
Installed |
|
Sewer
|
Installed |
https://www.realtor.ca/real-estate/29454862/6-12-wesleyan-street-halton-hills-georgetown-georgetown