4 Bedroom
2 Bathroom
1,350 ft2
Central Air Conditioning
Forced Air
$723,999Maintenance, Landscaping, Property Management, Water
$569 Monthly
For more info on this property, please click the Brochure button. This townhouse offers a Livingroom with a 12-foot ceiling with a ceiling fan, plus large windows that flood the living area with abundant natural light. An open concept layout connects Kitchen, Dining and Living rooms, while still providing a degree of privacy between these areas. The Livingroom’s walk-out to the deck provides an extra 400 square feet of Summer/Fall living space. And a supervised outdoor swimming pool adds to your outdoor enjoyment. The Deck's Fencing (newly installed in 2025) and the expansive green space beyond it provides a desirable degree of outdoor privacy not often found. Inside a new clothes washer and dryer were installed in 2024, and a High Efficiency Gas Furnace was installed in 2023. Also, the kitchen offers 4 appliances, which includes a Reverse Osmosis Water Purification System and Drinking Water Tap. This townhouse complex has been managed for over 30 years by GSA Property Management who provides very responsive and professional care for the exterior of our homes and all common areas. Canada Post and Amazon provide deliver direct to each home, while Mississauga Transit and Cooksville GO trains/buses are close by. In addition, you can walk to schools, parks, as well as the next-door recreation center. Plus, you can shop for groceries at two nearby plazas and have Square One within walking distance or a quick drive. There is also easy access to Highways 403, 401, 410, 427, 407, QEW, and Toronto’s International Airport. In addition, there are 5 visitor parking spots on the cul-de-sac where this townhouse is located, which enables visitors to park across from your front door. (id:56248)
Property Details
|
MLS® Number
|
40802124 |
|
Property Type
|
Single Family |
|
Amenities Near By
|
Park, Playground, Public Transit, Schools, Shopping |
|
Community Features
|
Community Centre |
|
Equipment Type
|
Water Heater |
|
Features
|
Cul-de-sac, Automatic Garage Door Opener |
|
Parking Space Total
|
2 |
|
Rental Equipment Type
|
Water Heater |
Building
|
Bathroom Total
|
2 |
|
Bedrooms Above Ground
|
3 |
|
Bedrooms Below Ground
|
1 |
|
Bedrooms Total
|
4 |
|
Appliances
|
Dishwasher, Dryer, Refrigerator, Stove, Water Purifier, Washer, Hood Fan, Window Coverings, Garage Door Opener |
|
Basement Development
|
Unfinished |
|
Basement Type
|
Partial (unfinished) |
|
Constructed Date
|
1977 |
|
Construction Material
|
Wood Frame |
|
Construction Style Attachment
|
Attached |
|
Cooling Type
|
Central Air Conditioning |
|
Exterior Finish
|
Brick, Wood, Shingles |
|
Fire Protection
|
Smoke Detectors |
|
Fixture
|
Ceiling Fans |
|
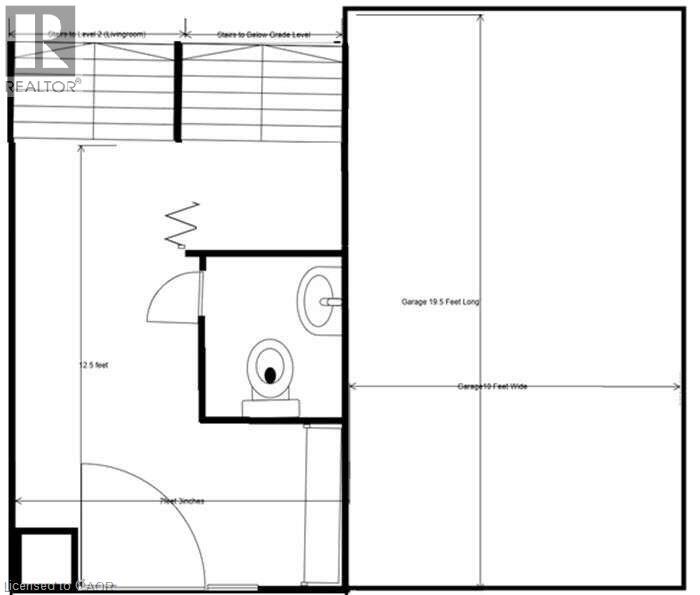
Half Bath Total
|
1 |
|
Heating Type
|
Forced Air |
|
Size Interior
|
1,350 Ft2 |
|
Type
|
Row / Townhouse |
|
Utility Water
|
Municipal Water |
Parking
|
Attached Garage
|
|
|
Visitor Parking
|
|
Land
|
Access Type
|
Road Access |
|
Acreage
|
No |
|
Land Amenities
|
Park, Playground, Public Transit, Schools, Shopping |
|
Sewer
|
Municipal Sewage System |
|
Size Total Text
|
Unknown |
|
Zoning Description
|
Rm5 |
Rooms
| Level |
Type |
Length |
Width |
Dimensions |
|
Second Level |
Other |
|
|
7'6'' x 4'0'' |
|
Second Level |
Porch |
|
|
19'0'' x 19'0'' |
|
Second Level |
Living Room |
|
|
18'0'' x 10'0'' |
|
Second Level |
Other |
|
|
8'0'' x 3'6'' |
|
Second Level |
Dining Room |
|
|
10'0'' x 10'0'' |
|
Second Level |
Eat In Kitchen |
|
|
17'0'' x 9'0'' |
|
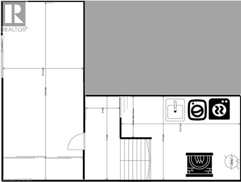
Third Level |
Other |
|
|
9'6'' x 3'0'' |
|
Third Level |
3pc Bathroom |
|
|
8'9'' x 5'0'' |
|
Third Level |
Bedroom |
|
|
13'0'' x 8'6'' |
|
Third Level |
Bedroom |
|
|
15'0'' x 9'0'' |
|
Third Level |
Primary Bedroom |
|
|
18'0'' x 10'0'' |
|
Basement |
Utility Room |
|
|
16'0'' x 7'6'' |
|
Basement |
Bedroom |
|
|
17'0'' x 12'6'' |
|
Main Level |
Other |
|
|
3'6'' x 3'6'' |
|
Main Level |
2pc Bathroom |
|
|
5'0'' x 3'0'' |
|
Main Level |
Foyer |
|
|
12'0'' x 5'0'' |
https://www.realtor.ca/real-estate/29309818/3395-cliff-road-n-unit-38-mississauga