228 Queenston Street St. Catharines, Ontario L2P 2X1

$349,900

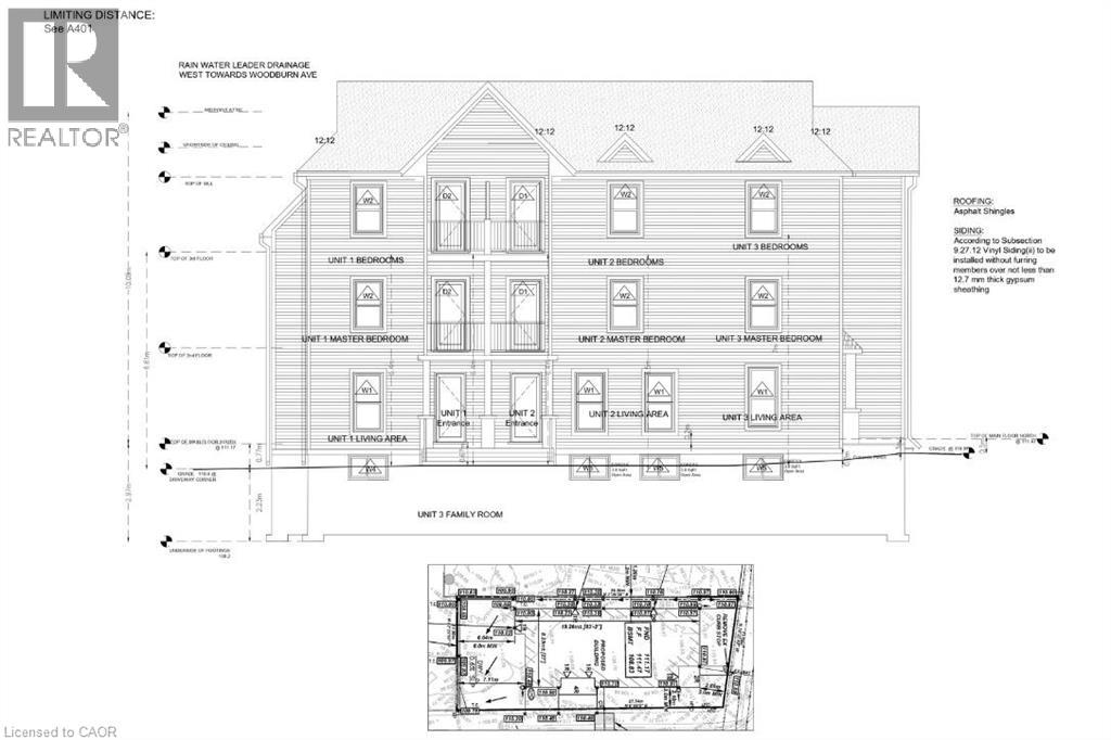
Vacant building lot with approved plans for a 3-unit residential development in a growing area of St. Catharines. The property is zoned M1 and benefits from an Official Plan designation supporting mixed-use, including residential, offering strong flexibility for redevelopment . Significant upfront work has already been completed, including minor variance approval and full building permit issuance for a purpose-built triplex. Plans allow for a 3-storey residential building with three self-contained units, designed in compliance with current building code requirements . The current owner has invested over $55,000 in pre-development costs, including permits, development charges, servicing upgrades, and site preparation. This represents a major time and cost savings for a buyer looking to move forward quickly with construction. The lot is approximately 38 ft frontage with good depth and is located along Queenston Street with convenient access to downtown St. Catharines, transit, and nearby commercial amenities. The surrounding area continues to see ongoing redevelopment and intensification, making this an attractive opportunity for investors and builders alike. (id:56248)

Property Details

MLS® Number 40817293
Property Type Vacant Land
Amenities Near By Public Transit, Schools
Community Features High Traffic Area

Building

Basement Type None
Utility Water Municipal Water

Land

Acreage No
Land Amenities Public Transit, Schools
Sewer Municipal Sewage System
Size Depth 96 Ft
Size Frontage 38 Ft
Size Total Text Under 1/2 Acre
Zoning Description M1

Utilities

Natural Gas Available

https://www.realtor.ca/real-estate/29602273/228-queenston-street-st-catharines

Your Favourites

 

No Favourites Found

 

THIS WEEKS OPEN HOUSES