3 Oriole Avenue South Bruce Peninsula, Ontario N0H 2T0

$139,000

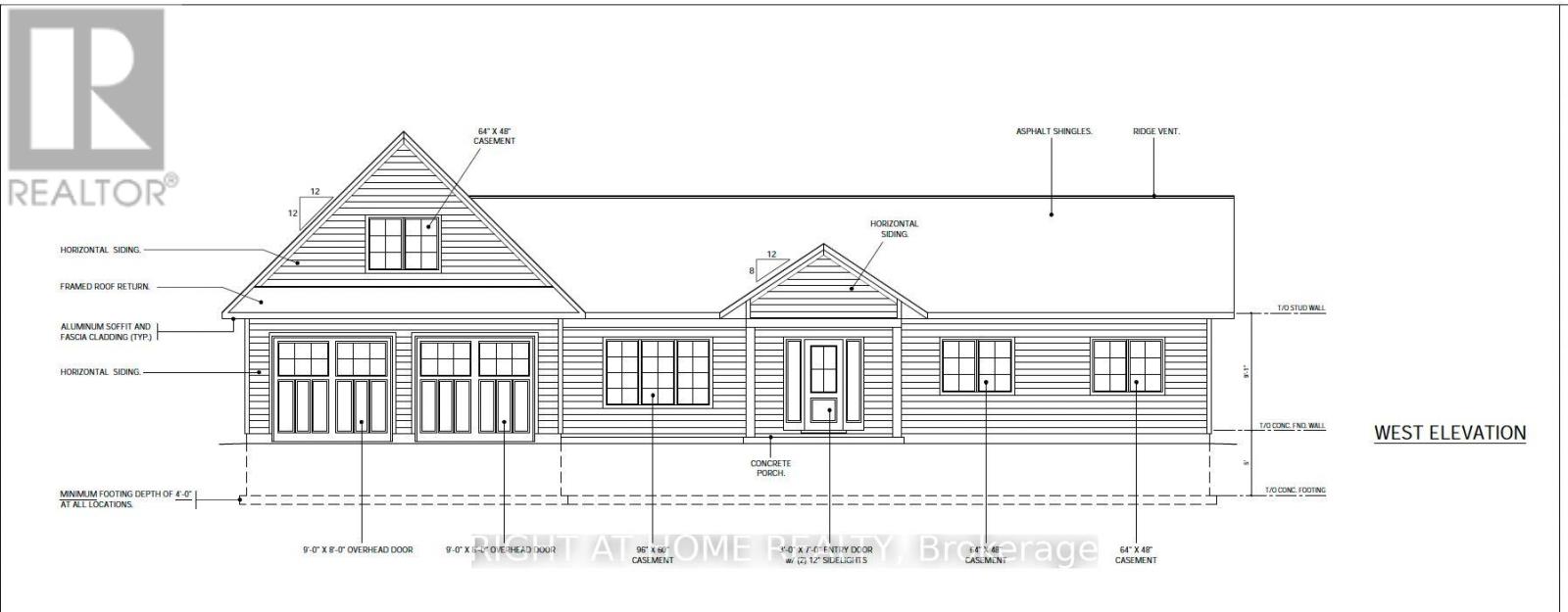
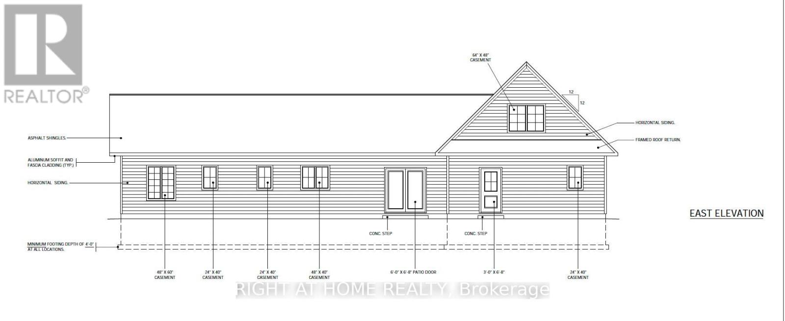
HEY INVESTORS! - CHECK THIS AMAZING DEAL! PRIVATE LOT, GREAT TO BUILD YOUR NEXT DREAM HOME. HUGE BONUS - PROPERTY COMES WITH APPROVED DRAWINGS! PRICED FOR QUICK SALE! Unlimited Possibilities With Close Proximity To Water - Best Deal You Can Ever Find! Excellent Opportunity to Build Your Dream Nest Near Lake Huron! Rare 100' x 140' lot located in desirable Oliphant, South Bruce Peninsula, just a short walk to Lake Huron. Ideal for a cottage or year-round residence. Surrounded by mature trees, nature, and established homes and cottages. Property features R3 zoning and APPROVED DRAWINGS with BUILDING PERMIT, allowing for a 4-bedroom, 3-bathroom bungalow (included with the sale) ( Seller Spent $$$ to Get It Done). Conveniently located a short drive to Sauble Beach and Wiarton. LIMITLESS POTENTIAL WITH THIS UNIQUE LOT! (id:56248)

Property Details

MLS® Number X12742132
Property Type Vacant Land
Community Name South Bruce Peninsula

Building

Land

Acreage No
Size Depth 140 Ft
Size Frontage 100 Ft
Size Irregular 100 X 140 Ft
Size Total Text 100 X 140 Ft|under 1/2 Acre

Utilities

Cable Available

https://www.realtor.ca/real-estate/29305936/3-oriole-avenue-south-bruce-peninsula-south-bruce-peninsula

Your Favourites

 

No Favourites Found

 

THIS WEEKS OPEN HOUSES