2 Bedroom
3 Bathroom
1,165 ft2
2 Level
Central Air Conditioning
Forced Air
$485,000
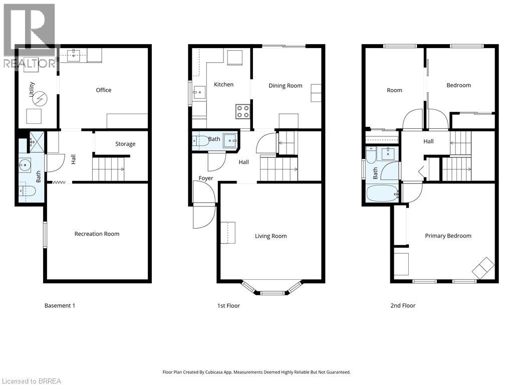
Welcome to 12 White Owl Crescent, a home with so much potential, featuring 2 bedrooms plus a den, (previously was third bedroom and can be converted back,) and 3 bathrooms in Brantford’s desirable North End. This semi-detached home offers bright living spaces with a large bay window in the front living room, sliding doors off the dining room leading to the deck, and a finished basement with additional living space ideal for lounging, a home office or flex area, and a convenient wet bar with cabinetry. The main level includes a 2-piece powder room, the upper level is complete with a full 4-piece bathroom, and the basement offers a 3-piece bath, making this home well-suited for everyday living and growing families. The large backyard is a standout feature—perfect for kids, dogs, outdoor play, and future family plans. With major updates completed in the last five years, including windows, roof, furnace, A/C, and driveway, you can move in with confidence while adding your own personal touches over time. A fantastic opportunity for first-time buyers or a young family looking to settle into a friendly, convenient North End community. (id:56248)
Property Details
|
MLS® Number
|
40802567 |
|
Property Type
|
Single Family |
|
Amenities Near By
|
Park, Place Of Worship, Playground, Public Transit, Schools, Shopping |
|
Equipment Type
|
Furnace, Water Heater |
|
Parking Space Total
|
2 |
|
Rental Equipment Type
|
Furnace, Water Heater |
Building
|
Bathroom Total
|
3 |
|
Bedrooms Above Ground
|
2 |
|
Bedrooms Total
|
2 |
|
Appliances
|
Dishwasher, Dryer, Refrigerator, Stove, Washer |
|
Architectural Style
|
2 Level |
|
Basement Development
|
Finished |
|
Basement Type
|
Full (finished) |
|
Construction Style Attachment
|
Semi-detached |
|
Cooling Type
|
Central Air Conditioning |
|
Exterior Finish
|
Aluminum Siding, Brick Veneer, Other |
|
Half Bath Total
|
1 |
|
Heating Type
|
Forced Air |
|
Stories Total
|
2 |
|
Size Interior
|
1,165 Ft2 |
|
Type
|
House |
|
Utility Water
|
Municipal Water |
Land
|
Acreage
|
No |
|
Land Amenities
|
Park, Place Of Worship, Playground, Public Transit, Schools, Shopping |
|
Sewer
|
Municipal Sewage System |
|
Size Frontage
|
28 Ft |
|
Size Total Text
|
Under 1/2 Acre |
|
Zoning Description
|
R2 |
Rooms
| Level |
Type |
Length |
Width |
Dimensions |
|
Second Level |
4pc Bathroom |
|
|
4'6'' x 7'7'' |
|
Second Level |
Den |
|
|
7'10'' x 10'10'' |
|
Second Level |
Bedroom |
|
|
9'3'' x 10'10'' |
|
Second Level |
Bedroom |
|
|
13'7'' x 12'11'' |
|
Basement |
3pc Bathroom |
|
|
3'6'' x 9'8'' |
|
Basement |
Living Room |
|
|
13'7'' x 12'11'' |
|
Basement |
Storage |
|
|
7'2'' x 6'9'' |
|
Basement |
Utility Room |
|
|
5'2'' x 10'10'' |
|
Basement |
Recreation Room |
|
|
11'11'' x 10'10'' |
|
Main Level |
Living Room |
|
|
13'7'' x 12'11'' |
|
Main Level |
Dining Room |
|
|
9'3'' x 10'10'' |
|
Main Level |
Kitchen |
|
|
7'10'' x 10'10'' |
|
Main Level |
2pc Bathroom |
|
|
6'2'' x 2'8'' |
|
Main Level |
Foyer |
|
|
3'6'' x 6'8'' |
https://www.realtor.ca/real-estate/29319296/12-white-owl-crescent-brantford